Аренда помещения свободного назначения

18 480 ₽/мес

600 ₽ за м²/мес.

31 м²
Площадь
4/4
Этаж

Поделиться

Добавить в избранное


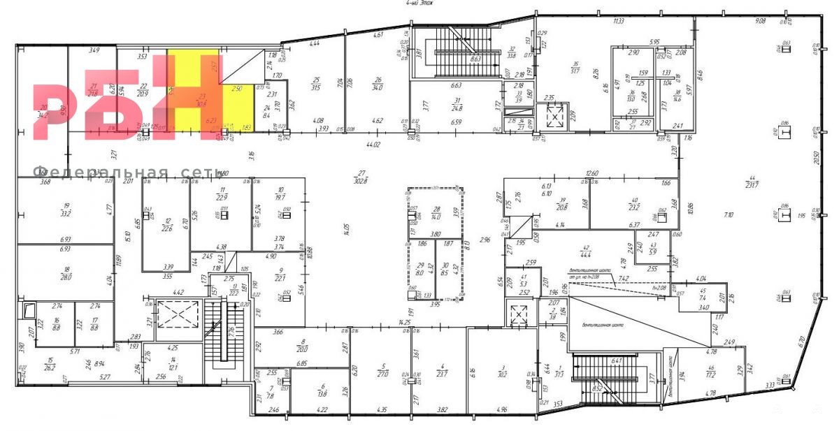
Сдается помещение свободного назначения, площадью 30.80 кв.м, расположенное по адресу: Нефтекамск г, Ленина ул, 19Е

ТК «ПЛАНЕТА» — современное, идеальное пространство для вашего бизнеса в самом центре Нефтекамска!
Сочетание шопинга, гастрономии, бьюти-услуг, офисов крупнейших банков создает идеальную экосистему для развития вашего ритейла или сервиса. Высокая визуальная доступность здания и современный дизайн подчеркнут статус вашей компании.

Характеристики помещения:
▶ бутик на 4 этаже 30, 8 м2
▶ находится на проходном месте в самом центре
​​​​​​​▶ наличие мокрой точки
▶ хорошее освещение
▶ место для вывески
▶ соседи офисы и бьюти сервисы

О торговом комплексе:
▶ профессиональная управляющая компания
▶ наличие лифта для посетителей
​​​​​​​▶ большая парковка
▶ ежедневный клининг  (в ТК очень чисто и презентабельно)
▶ график работы с 7.00 до 21.00

Есть варианты других площадей от 10 кв.м!
​​​​​​​
☎ Звоните! Предоставим всю дополнительную информацию.
От собственника, без комиссии для арендаторов! 

Номер объекта: #5/545719/8379

Дата обновления: 29 января 2026