125 000 ₽/мес

250 ₽ за м²/мес.

500 м²
Площадь
1/2
Этаж

Поделиться

Добавить в избранное


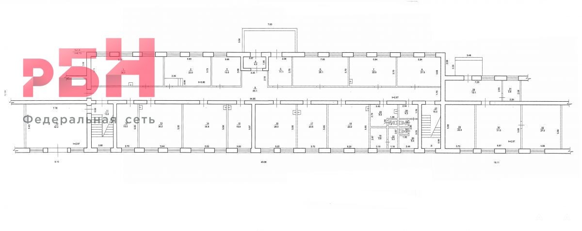
Сдается помещение свободного назначения, площадью 500.00 кв.м, расположенное по адресу: Нефтекамск г, Техснабовская ул, 6

Предлагается в аренду административное здание со всеми коммуникациями и кабинетной планировкой.
Варианты использования: хостел, офис, медцентр, легкое производство, склад, фулфилмент и др. 

▶ капитальное здание
▶ отличные подъездные пути
▶ большая парковка
▶ все комуникации
▶ ремонт под хостел (душевые, кухня, санузлы)
▶ большое количество окон

Готовы обсуждать ремонт под долгосрочного арендатора.

☎ Звоните! Выслушаем все предложения

"Регион Бизнес Недвижимость"
Работаем от собственника,
без комиссии для арендатора.
Номер объекта: #5/545734/8379

Дата обновления: 19 февраля 2026