Продажа помещения свободного назначения

16 365 000 ₽

41 046 ₽ за м²

399 м²
Площадь
1/9
Этаж

Поделиться

Добавить в избранное


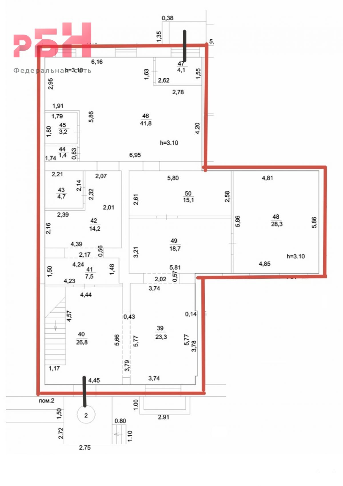
Продается помещение свободного назначения, площадью 398.70 кв.м, расположенное по адресу: Нефтекамск г, Нефтяников ул, 3

- помещение находится в густонаселенном районе города, вокруг много высотных новостроек
- 2 входа (основной с улицы и запасной со двора)
- 1-ый этаж 189, 1 кв.м.высота потолков 3, 1 м.
- подвал 209, 6 кв.м. с окнами,  высота потолков 2, 45 м.
- в помещении имеется 2 санузла 
- есть все коммуникации, установлена система принудительной вентиляции
- по соседству работают продуктовый магазин "Пятерочка", пвз Wildberries, стоматология Номер объекта: #5/545779/8379

Дата обновления: 27 марта 2026