Продажа помещения свободного назначения

Республика Башкортостан, Нефтекамск, Родниковая ул, 81

20 900 000 ₽

35 666 ₽ за м²

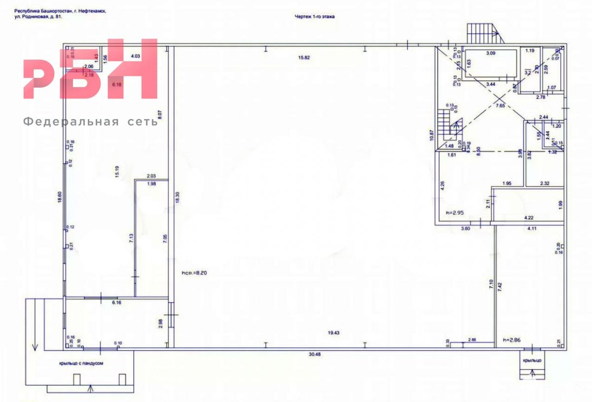
586 м²
Площадь
1/1
Этаж

Поделиться

Добавить в избранное


Продается помещение свободного назначения, площадью 586.00 кв.м, расположенное по адресу: Нефтекамск г, Родниковая ул, 81


Срочная продажа! Стоимость ниже рынка!

▶ Выгодные перспективы:
✔ Первая линия густонаселенного частного сектора
✔ В ближайшие годы – застройка жилым микрорайоном (рост ценности объекта), рядом уже достраивается школа для нового района.
✔ Рядом достраивается школа → увеличение трафика и коммерческой привлекательности

▶  Отличный вариант для:
• Магазина, кафе, автосервиса
• Склада или логистического комплекса
• Производства, мастерской, цеха

▶  Площадь: 586 м² (3 изолированных помещения):
• 90 м² – отлично подойдет для розничной торговли или офиса
• 420 м² – идеально для склада, производства, крупного магазина
• 30 м² – помещение с отдельным входом
 плюс подсобные помещения​​​

▶  Ключевые преимущества:
✔ Капитальное здание – стальной каркас, сэндвич-панели, долговечность
✔ Готовый ремонт – можно сразу использовать
✔ Высокие потолки + антресоль под офис или склад
✔ Автономное отопление, все коммуникации подключены
✔ Удобные подъездные пути для фур и грузовиков
✔ Большая асфальтированная парковка на 36 машин

▶  Инвестиционная привлекательность:
Район активно развивается – в ближайшие годы стоимость недвижимости здесь будет только расти!


​​​​​​​Готовы рассмотреть варианты сделки!
Звоните, чтобы узнать детали и договориться о просмотре!


Номер объекта: #5/545599/8379

Дата обновления: 21 октября 2025